MLS® property information is provided under copyright© by the Victoria and Vancouver Island Real Estate Board. The information is from sources deemed reliable, but should not be relied upon without independent verification. This website must only be used by consumers for the purpose of locating and purchasing real estate.
The trademarks MLS®, Multiple Listing Service® and the associated logos are owned by CREA and identify the quality of services provided by real estate professionals who are members of CREA.
*Where indicated, "PREC" means Personal Real Estate Corporation.
© 2026 IslandSold.com - Vancouver Island Real Estate. All rights reserved.
This 0 bedroom, 0 bathroom land is listed for sale at $1,250,000 in Sooke, British Columbia. Lot size: 61,420 sq ft (1.41 acres).MLS® #1022063.
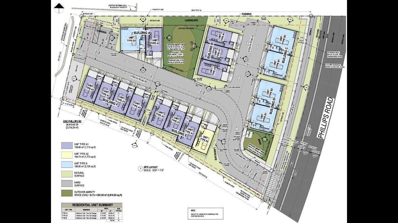
Price Reduced — 17-Unit Townhome Development | Shovel-Ready March 2026
Prime development opportunity: approved Development Permit for 17 townhomes, ready to break ground March 2026. Quiet, well-located site backs onto De Mamiel Creek, delivering natural frontage, enhanced curb appeal, and long-term value. Within easy walking distance of SeaParc Recreation Centre and Sunriver Nature Trail, the property captures lifestyle-driven demand and strong market fundamentals. Ideal for builders or investors seeking a turnkey, low-risk project. Contact us for full details and the complete development package.
Looking for homes for sale in Sooke? Browse Sooke real estate listings,residential properties, and Vancouver Island homes on IslandSold.com. Part of the Sooke area.
View comprehensive market analysis for Phillips Rd including recent sales, pricing trends, and days on market statistics. Compare this property with other homes on the same street to better understand the local market.
View Phillips Rd Market ReportPrice Reduced — 17-Unit Townhome Development | Shovel-Ready March 2026
Prime development opportunity: approved Development Permit for 17 townhomes, ready to break ground March 2026. Quiet, well-located site backs onto De Mamiel Creek, delivering natural frontage, enhanced curb appeal, and long-term value. Within easy walking distance of SeaParc Recreation Centre and Sunriver Nature Trail, the property captures lifestyle-driven demand and strong market fundamentals. Ideal for builders or investors seeking a turnkey, low-risk project. Contact us for full details and the complete development package.

Dallas King
Personal Real Estate Corporation
RE/MAX Generation
Discover more properties and explore the Sooke community, including the Sunriver neighborhood.
Prepared Buyer Program
Qualified Prepared Buyers receive a Premium at closing on purchases at this price.
~$7,750
* Estimated. Actual Premium confirmed per transaction prior to your first offer.
Learn about the Prepared Buyer Program →Discover other great communities in the area
Explore the property location and surrounding area
MLS® Reciprocity listing
MLS® ReciprocityMLS® Reciprocity listing
MLS® ReciprocityMLS® Reciprocity listing
MLS® ReciprocitySooke, BC
3 bed · 2.0 bath · 1,751 sf · 138 days
Manufactured Home
MLS® Reciprocity listing
MLS® ReciprocityMLS® Reciprocity listing
MLS® ReciprocityMLS® Reciprocity listing
MLS® ReciprocityMLS® Reciprocity listing
MLS® ReciprocityMLS® Reciprocity listing
MLS® ReciprocityMLS® Reciprocity listing
MLS® ReciprocitySooke, BC
2 bed · 2.0 bath · 1,202 sf · 143 days
Manufactured Home
MLS® Reciprocity listing
MLS® ReciprocityMLS® Reciprocity listing
MLS® ReciprocityMLS® Reciprocity listing
MLS® Reciprocity
Protection Island, BC
3 bed · 1.0 bath · 689 sf
Single Family Residence
Courtesy of Team 3000 Realty Ltd
MLS® Reciprocity
Cumberland, BC
3 bed · 3.0 bath · 1,374 sf
Townhouse
Courtesy of Easy List Realty
MLS® Reciprocity
Cobble Hill, BC
5 bed · 3.0 bath · 2,588 sf
Single Family Residence
Courtesy of DFH Real Estate Ltd.
MLS® Reciprocity
Saanich, BC
3 bed · 4.0 bath · 2,133 sf
Townhouse
Courtesy of RE/MAX Camosun
MLS® Reciprocity
Saanich, BC
3 bed · 4.0 bath · 2,273 sf
Townhouse
Courtesy of RE/MAX Camosun
MLS® Reciprocity
Saanich, BC
3 bed · 4.0 bath · 2,068 sf
Townhouse
Courtesy of RE/MAX Camosun
MLS® Reciprocity